Někdy jsou sny tím hlavním, čím se architekti při realizacích projektů řídí. Přesně takový sen o ideálním bydlení se proměnil v realitu v brazilském Sao Paulu. Majitel tamní nemovitosti a nadšený sběratel umění si přál vytvořit dům, kde ožijí umělecká díla a kde pro chvíle pohody nechybí ani bazén.
Projektu, který nakonec dostal jméno Panorama House, se ujal brazilský architekt Fernanda Marques. Ten se rozhodl umístit bazén přímo do obývacího pokoje. Vznikl tak prvek, který vytváří napětí a působivou atmosféru v celém prostoru.



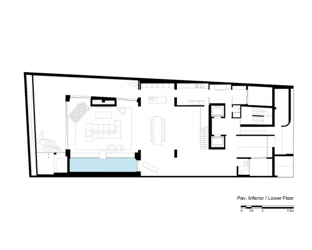
Architekt měl k dispozici 477 metrů čtverečních. Návrh rozdělil na dvě patra, přičemž ve spodní části jsou společenské místnosti a v patře zase ty soukromé.


„Navrhl jsem byt pro bezdětný pár. Majitel pracuje na finančním trhu a je nadšený sběratel umění. Součástí sbírky jsou díla umělců, které velmi obdivuji, například Ernesta Neta, Edgarda de Souzu, Manoela Ria Branca, Zerbiniho či Tungu. Proto bylo důležité zvolit vhodné rozmístění v interiéru,“ vysvětluje architekt.

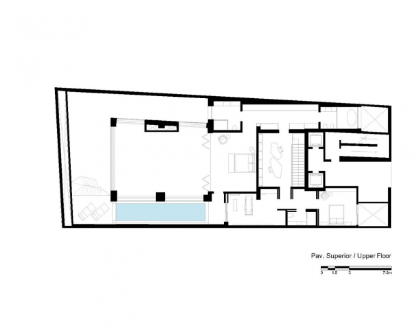
V přízemí byste našli veliký obývací pokoj, navazující na jídelnu a kuchyň. V patře je pak hlavní ložnice s pokojem pro hosty, posilovna, kancelář, ale i přístup k bazénu.


„Stavba bazénové struktury byla vůbec tím nejobtížnějším aspektem projektu. Pro dosažení kýženého výsledku jsme použili velmi tlusté sklo a při instalaci jsme museli využít specializované řemeslníky. Při pohledu na projekt si myslím, že to určitě stálo za to. Představte si byt bez tohoto skvostného bazénu, nebylo by to ono. Myslím si, že jsem vytvořil další umělecké dílo,“ dodává Marques.



Vzhledem k tomu, že hlavním cílem bylo harmonické umístění veškerých uměleckých děl a přihlédnutí také na budoucí růst sbírky, byl minimalisticky lazený interiér jasnou volbou. Ostatně jako tomu tak je u většiny Marquesových projektů. „Nechtěl jsem, aby nábytek jakýmkoli způsobem přebíjel umělecká díla, ale spíše aby k nim sloužil jako jemný doplněk. To je důvod, proč převažují světlé barvy a vybavení od brazilských návrhářů," vysvětluje.

Elegantní jídelní stůl pojme hromadu hostů, kteří si můžou vychutnat i vybrané kousky vín z vinotéky opodál. Pečlivě navržené bylo mimo jiné i osvětlení. Architekt ho pečlivě vybíral tak, aby vynikla umělecká sbírka. Spodní patro totiž slouží převážně jako samotná galerie.


Kuchyně je velice minimalistická a celá z nerezu. Nic tu není navíc, nic neruší čistotu designu.

Když se vydáte do prvního patra, první místnost, která vás uvítá, je pracovna. Tu architekt barevně zvýraznil tmavým dřevěným nábytkem a obložením.


O kousek dál se dostanete do světlého odpočinkového salonku, kde se můžete usadit do pohodlných křesel a užívat si uměleckého rozpoložení.


V ložnici vás ohromí rozhled do celého bytu. Odtud jsou ty nejkrásnější výhledy. A to jak na celý obývák, kterému jako velké akvárium dominuje samotný bazén, tak také do venkovní zeleně. Z celého prostoru tu sálá klid a mír, v němž se usíná nejlépe.


Mezipatra jsou propojena podlahou spojující ložnici, obývací pokoj i prosklený bazén. Odevšud je možné spatřit nějaký ten kus umění, který dodává celému domu na jedinečnosti.

Oázou relaxace je dozajista koupelna. Volně stojící vana přímo láká k horké koupeli. Za velkým oknem, kterým proniká do místnosti denní světlo, se rozpínají živé rostliny, jež přispívají k harmonické atmosféře.


Dalo by se říct, že celé toto obydlí je jedním uměleckým skvostem. Díky velkým proskleným plochám architekt skvěle propojil interiér s exteriérem a podařilo se mu do prostoru zakomponovat umělecké sbírky tak, aby dotvářely celkovou atmosféru domu.
Nahlédněte také do jiného brazilského domu, kterému zase vévodí africké umění.
Jaký je Váš názor?
Související články

Vila 118 na Ukrajině okouzlí nejednoho milovníka designu
Brazilský dům ožil africkým uměním
Kyjevský byt je rájem pro milovníky knih i umění
V Brazílii vzniklo bydlení plné přírodní harmonie
Autor:
Přidejte se k Insidecor komunitě...
Insidecor
Insidecor na Instagramu