V čínském městě Hangzhou, na jižním břehu řeky Qiantang, vznikl moderní a elegantní domov, který se skvěle integroval do městského prostředí. Klidné útočiště plné přírodních barev a materiálů, ale i umění na zdech, patří k hvězdným developerským projektům studia GDF. Nechte se inspirovat, nahlédněte do harmonického prostoru a za zdi rušného města.

Hangzhou je město plné energie, najdete tu ale i klidné kouty. Jedním z nich je právě tento projekt. „Brali jsme život jako jádro a město jako zdroj,“ říkají o návrhu autoři.



Když vejdete dovnitř, do centra bytu, ocitnete se ve společenské místnosti. Otevřený prostor obývacího pokoje a jídelny působí stylově a díky mramorové stěně, která je zároveň zdobným prvkem, také mírně honosně. Mramor ale můžete spatřit i na podlaze a deskách stolů. Obývací pokoj a jídelna jsou integrovány do jednoho celku, aby se zvýšila interakce mezi členy rodiny a vytvořily se rozmanitější prostory.



Kuchyně je umístěna za obývacím pokojem a oddělují ji tmavě prosklené posuvné dveře. Bílé kuchyňské skříňky v sobě odrážejí prostor obývacího pokoje. I zde najdete zdobný plochý mramor.


Prosklená konstrukce v obývacím pokoji vypadá jako „architektura“ rostoucí ve vnitřním prostoru. Propojuje přízemí s prvním patrem a dodává jasné struktury a přirozenou atmosféru. Navazující stěnová konstrukce je složena ze svislých dřevěných pásů, které předvádějí harmonický přechod od přírodních struktur k moderním liniím.


Zatímco v přízemí prosklené konstrukce najdete knihovnu, v patře očekávejte multifunkční prostor pro různé volnočasové aktivity. Designéři sem umístili designové prvky v podobě abstraktních městských stavebních forem, jež sem perfektně zapadají.

V interiéru nechybí malby na zdech. Prostor oživily obrazy městských architektur.



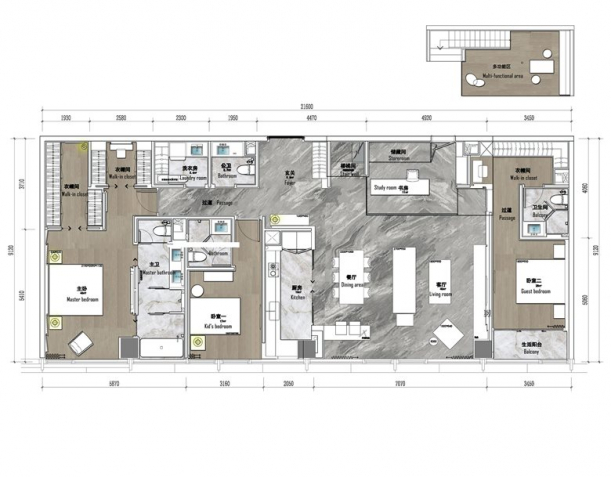
Ložnice pro hosty je na druhém konci bytu. Vícevrstvá zeď je nová a rezonuje se strukturami stěn v hlavní ložnici. Samostatná koupelna a šatna poskytují hostům pohodlí a soukromí.



Hlavní ložnici zdobí dřevěné podlahy, kožené obklady i vyvážená jemná paleta barev. Ovšem hlavní ozdobou je stěna za postelí, která je jedinečná nejen svým vzhledem, ale i zabudovaným osvětlením.




Vedle hlavní ložnice je dětský pokoj, který doplňují jemné modré odstíny. Pokoj je minimalisticky řešený a velice útulný. Hlavním cílem také bylo, aby do něj proudilo co nejvíce přirozeného světla. Což se podařilo.

Prostor je vkusný a vyznačuje se zjednodušujícím modernismem, uklidňující barevnou paletou, elegantními liniemi a jasným uspořádáním a strukturami.
„Obytné prostory a město jsou úzce spojeny. Každý dům je zářící hvězda, která osvětluje město. Tento projekt interpretuje moderní městský životní styl pomocí jedinečných designových prvků,“ dodávají na závěr architekti.
THE STARRY CENTER
Jaký je Váš názor?
Související články

Rok 2020 byla lekce. Co jsme se díky ní naučili?
Interiérová encyklopedie: Co nabízí současná elegance?
Šikmé plochy a diagonální linie jsou symbolem rezidence v Bangkoku
Když děti odejdou z domu, je čas na vysněnou rekonstrukci
Apartmán FHM Bachelor okouzluje úchvatným výhledem na Bangkok
Autor:
Přidejte se k Insidecor komunitě...
Insidecor
Insidecor na Instagramu