Kdo by nechtěl mít vlastní zahradu v centru rušného velkoměsta? O to víc, jedná-li se o rodinný byt ve výškové budově v New Yorku. Architektům ze studia Young Projects se podařilo zrekonstruovat podkrovní byt, sídlící v třináctém a čtrnáctém patře historické budovy, a vytvořit zde krásné bydlení pro celou rodinu. Pohled na hvězdy, sluncem zalitou oblohu i jedinečné výhledy na město si tak majitelé můžou vychutnat z nově vytvořeného venkovního dvora i střešní zahrady plné zeleně.


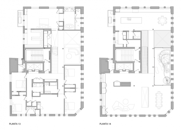
Rezidence s názvem Gerken zaujímá horní dvě patra výškové budovy Tribeca, kde na 700 metrech čtverečních architekti vykouzlili opravdu zajímavé bydlení. Majitel si přál nejen moderní, takřka umělecké prvky, ale i kus přírody. Vznikl tak návrh, kde architekti pracovali se třemi vnořenými hranoly. Díky tomu se u vchodu do podkroví otevřel krásný venkovní dvůr se stromy a rostlinami, z něhož lze dál pokračovat točitým schodištěm až na střešní zahradu.


Do spodního patra situovali architekti ložnice s koupelnami, pokoje pro hosty, obývací část a pracovnu. Naopak v podkroví vrchního patra byste našli kuchyň s menším jídelním koutkem, dále větší jídelní prostor, vhodný pro návštěvy, hlavní obývací zónu i krásné nádvoří, jež propojuje interiér s exteriérem.


Stávající jádro architekti oblékli do slušivého strukturovaného obložení v bílých tónech. Na zakázku vyrobené sádrokartonové panely byly zhotoveny staletí starou technikou za přispění současného digitálního designu. Do výklenku u schodů umístili architekti malou pracovnu, v níž se majitel může v klidu soustředit na svou práci.

Hlavní ložnice je řešená ve světlých tónech. Bílé stěny i nábytek doplňuje podlaha z přírodního dřeva. Většinu prostoru zaujímá veliká šedá postel, orientovaná k oknu. Právě dostatek oken zajišťuje přísun denního světla a nabízí mimořádné scenérie samotného města. Hned u ložnice mají majitelé k dispozici také prostornou koupelnu, které dominuje mramorové obložení, volně stojící bílá vana a prosklený sprchový kout.



Už ze spodního patra, kde se kromě pracovny nachází také menší obývací zóna s televizí, lze díky skleněným panelům v podkroví vidět dvůr plný zeleně. Z části otevřený strop nechává do celého prostoru proniknout vzdušnost a další sluneční paprsky.


Projekt, ač se zdá formálně zdrženlivý, je prostorově velice atraktivní, a to právě díky vnořenému nádvoří. Závan čerstvé a voňavé vegetace působí na celé podkroví jako harmonická oáza, v níž nejde dělat nic jiného, než relaxovat a čerpat energii z tohoto kousku přírody.



V kuchyni se opakují barvy a materiály, které architekti využili i v jiných koutech bytu. Volně stojící mramorový ostrůvek ideálně zapadá do podlouhlé místnosti a příjemně ji zaplňuje. Kromě kuchyňské stěny s vestavnými spotřebiči a úložnými skříňkami se zde nachází také menší jídelní koutek.




Veškeré společenské dění a rodinné sešlosti se odehrávají v hlavní obývací místnosti, ze které je to už jen pár krůčku ven do zahrady. V místnosti nelze přehlédnout zdobnou, skleněnou stěnu, která je doslova uměleckým skvostem. Tento „kaleidoskopický paravan“ propouští a odráží sluneční paprsky i venkovní rostliny. Díky tomu může příroda proniknout i dovnitř a rozehrát tak svůj tanec světel a stínů, ze kterých lze čerpat po celý den.






Zaujal vás styl tohoto bydlení, kde se interiér s exteriérem dokonale doplňují? Nakoukněte s námi také do Řadového domu v Brooklinu, do jehož návrhu architekti zakomponovali taktéž střešní prostory, nebo do Bytu v Kyjevě, kde je zahrada dokonce uvnitř.
Jaký je Váš názor?
Související články

MINI Living Londýn: mikro bydlení pro současné nomády
Garden House: Místo na zahradu se vždy najde
Byt v Kyjevě romanticky propojuje barvy, materiály i přírodu
Byt v Moskvě ožil v japonském stylu: zdobí ho příroda i fazetové dřevo
Řadový dům v Brooklynu - designové bydlení se střešní ložnicí
Autor:
Přidejte se k Insidecor komunitě...
Insidecor
Insidecor na Instagramu