Moderní prostředí pro život i umění. Tak by se dal nazvat jihoafrický dům, který se rozkládá na velkorysé ploše 1400 metrů čtverečních. Jde o projekt architektonického studia Saota, které zde perfektně zakomponovalo tamní prostředí s jedinečnými výhledy na pobřeží i rozsáhlou jihoafrickou sbírku umění.


Dvoupodlažní dům je postavený na strmém svahu hned u moře, k němuž je z jedné strany otevřený. Majitelé si tak můžou užívat tu pravou přímořskou atmosféru. Architekti promysleli vše do detailu a navrhli zde plný komfort moderního domova, který je koncipovaný tak, aby na každém jeho kousku vynikl nějaký ten umělecký skvost.




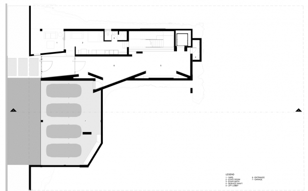
Vstup vede z nejvyhledávanější ulice Jihoafrické republiky, a to z Nettleton Road, odkud se stavba vyjímá v plné kráse. Svým architektonickým řešením je ale obdivuhodná ze všech stran. Vstupní fasáda reaguje na Le Corbusierovu definici architektury jako na „velkolepou hru hmot, které se spojují ve světle“.




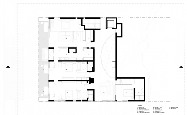
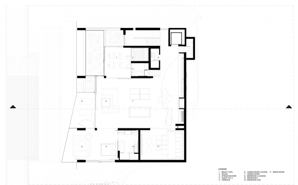
V přízemí byste našli šest velkých ložnic, z nichž tři jsou součástí rodinných apartmá. Nachází se tu také společný zábavní prostor s bazénem, hrami i kinem. Celé přízemní podlaží může být kompletně otevřené a propojené se zahradou. Když počasí moc nepřeje, stačí uzavřít skleněné výsuvné panely a místnosti jsou před nepřízní uchráněny. Výhledy do zahrady ale i tak zůstávají. A stejně tak i z vrchního patra, které má též prosklenou fasádu.


Ohromné výhledy se nabízí i z druhé strany domu. Úchvatné jsou především zdejší východy či západy slunce, rozpínající se nad horizontem moře.

Architekti si dali za cíl zbořit hranice mezi interiérem a exteriérem. Vznikl tak nepřetržitý a „průhledný“ prostor. Velkorysá zahrada je navíc otevřená přímo do Národního parku Table Mountain, čímž vzniká takřka nekonečná zeleň. A z druhé strany zase nekonečná modř, počínaje velkým bazénem a konče tyrkysovým mořem.



V interiéru je patrná mistrovská souhra světla, prostoru i materiálů, které doplňují překrásnou sbírku současného jihoafrického umění. Mezi domovem a galerií nejsou žádné patrné „mantinely“. Vše je perfektně sladěné a tvoří harmonický celek. Od tapiserie Paula Blomkampa a sochy Paula Edmundse, které oživují mystickou vstupní halu, k hravému dílu Porkyho Hefera, které se vznáší v prostoru, až k africkým maskám, zakomponovaným do tmavých zdí nad kuchyní.



Ze vstupní haly, která svým přítmím tak trochu připomíná jeskyni, je návštěvník veden směrem nahoru do vrchního, více prosvětleného patra.


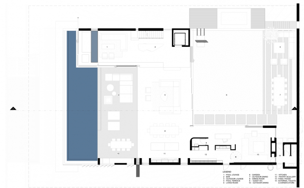
Zde se nachází hlavní obytný prostor. V rozsáhlém, otevřeném interiéru jsou umístěny kuchyně, bar, jídelna, obývací a rodinné pokoje, ale i zimní salonek či studijní a umělecké studio.


Zaujal vás tento dům plný umění? Vydejte se s námi i do jiných zajímavých míst. Líbit by se vám mohl také Dům v Tel Avivu s kouzlem přírody, světel a stínů nebo Rodinná vila v Íránu, která ožila díky vzpomínkám z dětství.
Jaký je Váš názor?
Související články

Moderní jeskyně? Takhle se žije v historickém centru Izraele
Brazilský dům ožil africkým uměním
Kyjevský byt je rájem pro milovníky knih i umění
Když je dům uměleckým dílem: obytný ráj na březích Atlantiku
Autor:
Přidejte se k Insidecor komunitě...
Insidecor
Insidecor na Instagramu